TIPOS DE LÍNEAS

Según norma ISO 128:1982

Se muestran los tipos de líneas más usados en el curso.

Tipos de líneas más usados según ISO 128

Lista completa

Lista completa de tipos de líneas según norma

Ejemplo de Aplicación

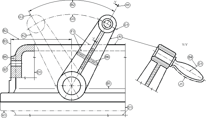
Se muestra un ejemplo utilizando los diferentes tipos de líneas en un dibujo técnico.

Ejemplo práctico de uso de tipos de línea